WORKPLACE

4000-966-918

汇亚大厦

AZIA Center
10元/㎡/天起
汇亚大厦
陆家嘴环路1233号

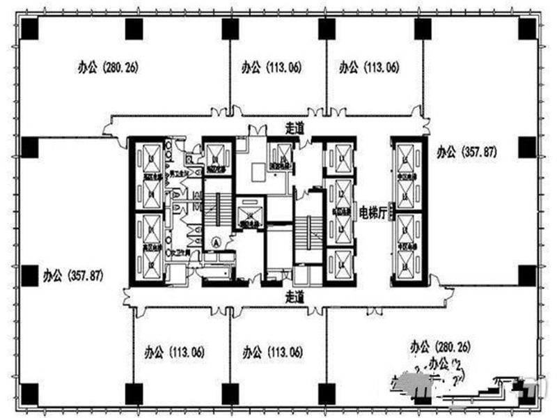
       汇亚大厦位于上海浦东小陆家嘴金融区核心地段的汇亚大厦,其概念及规划傲视同侪,代表着新一代办公空间设计的典范,并为现今各大国际企业及金融机构提供理想的办公环境。地铁二号线、延安路隧道、大连路隧道等完善交通网络,让小陆家嘴与上海各区紧密联系;于2004年年底通车之复兴路隧道,更有效的加强小陆家嘴对外的陆上交通网络,让各进出往返的国际商旅、行政人员及公司员工,倍感方便。大厦地上33层、地下4层,标准层面积2390平方米,层高2.8米。
       汇亚大厦处小陆家金融贸易区、东园路与陆家嘴环路交界处。汇亚大厦位于黄浦江畔,距滨江大道仅一步之遥,高区办公楼可欣赏百年外滩及浦江美景。大厦外立面采用全玻璃幕墙,草绿主色调与其低碳理念相吻合,为中国首栋获得美国绿色建筑委员会认证的办公楼;仲量联行为入驻企业提供全方位、人性化的物业服务。目前楼内的租户多为国际知名企业及金融机构。

汇亚大厦(AZIA Center)实景照片


汇亚大厦(AZIA Center)参数信息
建筑面积: 78870m²
楼层: 37层
层高: 2.8米
电梯数: OTIS客梯12部,货梯2部
网络: 电信、联通、移动
物业费: 42.00 元/㎡·月
物业公司: 上海世邦魏理仕物业顾问有限公司
空调: 中央空调
空调开放时间: 周一至周五 8:30-18:30 周六9:00-12:00
停车位: 地下 340个
停车费: 1500元/月
地址: 陆家嘴环路1233号
部分入驻企业: 希森美康医用电子(上海)有限公司、狮城产业投资咨询(上海)有限公司、三菱日联咨询(上海)有限公司、香港路通资讯香港有限公司上海代表处有限公司、毕盛投资咨询

DBS Tower
10元/㎡/天起
Bank of China Tower
9元/㎡/天起
One Lujiazui
9元/㎡/天起
Foxconn Tower
9元/㎡/天起
商圈快速查询
浦东
黄浦
静安
徐汇
长宁
虹口
杨浦
普陀
闵行
沪ICP备18025346号-5 沪公网安备31010702008222号